Our Shop Drawing services provide detailed, accurate, and construction-ready drawings that translate design intent into precise execution details. Shop drawings act as a critical bridge between design documents and on-site construction, ensuring clarity, coordination, and accuracy at every stage.

These drawings are essential for proper fabrication, installation, and coordination among contractors, engineers, and site teams, helping reduce errors and delays during construction

  • Clear coordination between design and construction
  • Supports accurate fabrication and installation
  • Improves construction efficiency and quality
  • Detailed execution-level drawings
  • Reduces on-site errors and rework

Project Scope & Execution – Shop Drawings

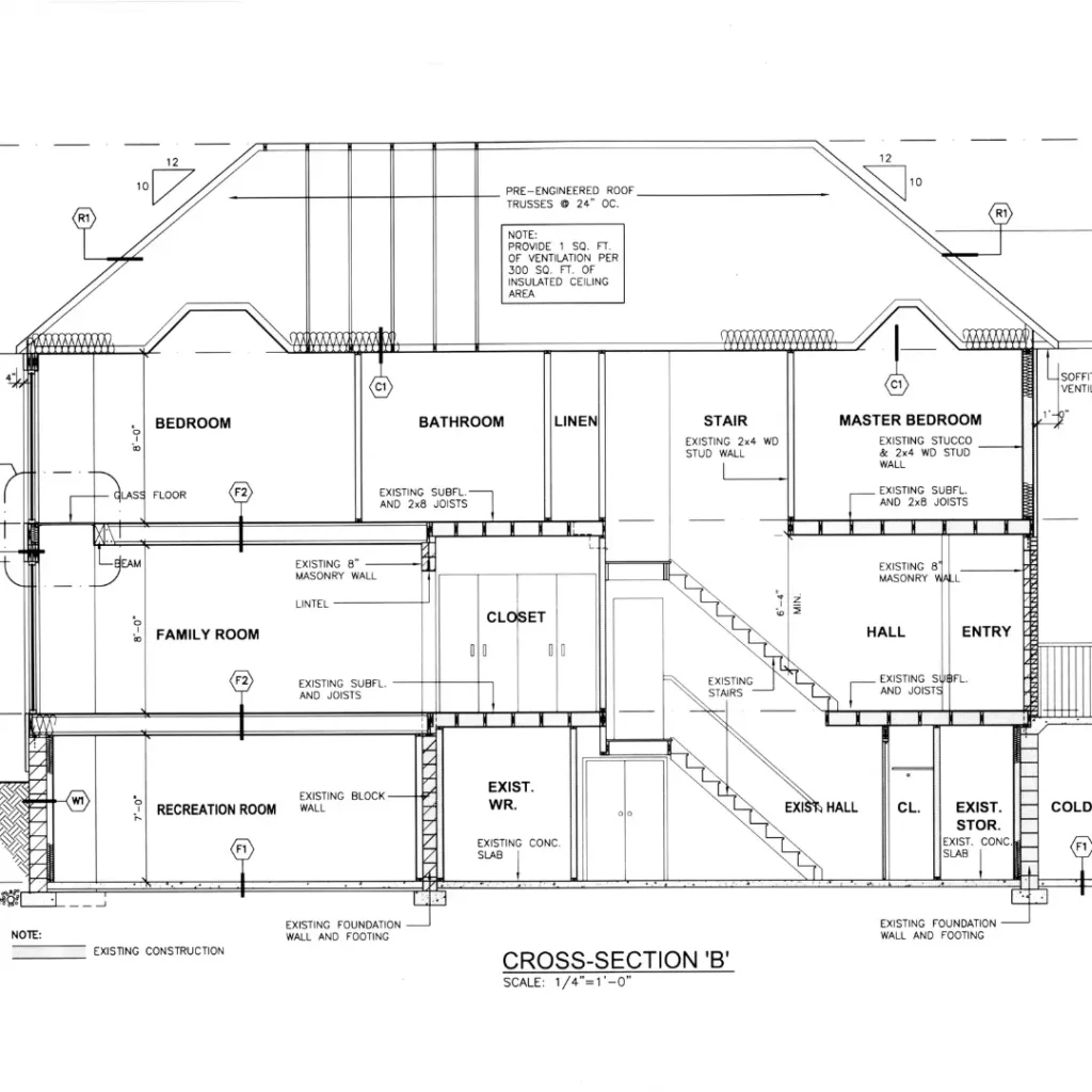
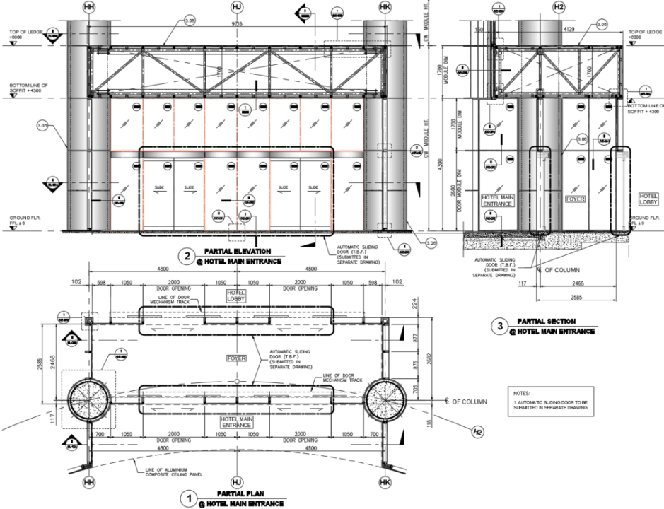
Our shop drawing scope includes detailed drawings for structural elements, architectural components, MEP services, joinery, and finishing works. Each drawing clearly represents dimensions, materials, fixing details, and installation methods.

We coordinate closely with architects, engineers, and site teams to ensure all drawings align with approved designs and construction requirements. Revisions are incorporated promptly to maintain accuracy throughout execution.

Architectural Shop Drawings

We prepare detailed drawings for architectural components such as walls, doors, windows, finishes, and layouts required for precise execution.

Structural Shop Drawings

We deliver structural shop drawings including reinforcement details, steel structures, and RCC elements to guide accurate construction.

MEP & Coordination Drawings

We provide coordinated shop drawings for electrical, plumbing, HVAC, and services to avoid clashes and ensure smooth installation.

better process

The Process of Working With Us

We specialize in a wide range of construction services, including residential, commercial, and industrial projects. From initial design to final inspection, we work closely with our clients to understand their unique needs and vision.

01.

Design Review & Requirement Collection

We review approved drawings, specifications, and project requirements before starting shop drawings.

02.

Shop Drawing Preparation & Coordination

Detailed shop drawings are prepared and coordinated with all disciplines for accuracy and constructability.

03.

Review, Revision & Final Submission

After feedback and revisions, final shop drawings are delivered ready for site execution and approvals.

faqs

Got questions? we've got answers

We specialize in a wide range of construction services, including residential, commercial, and industrial projects.

Shop drawings are detailed construction documents that show how a project will be built, including dimensions, materials, and assembly instructions. They are prepared by contractors or architects to ensure accuracy and clarity during construction.

They ensure accurate execution, proper coordination, and clarity between design and construction teams, reducing errors and rework

Shop drawings are prepared by experienced drafting professionals in coordination with engineers, architects, and contractors.

Yes, design drawings show intent, while shop drawings provide execution-level details for fabrication and installation.